Description
- Two-Bedroom Mid-Terraced Home Available For Rent Immediately
- Spacious Lounge And Dining Room Offering A Comfortable Living Space
- Modern Kitchen With Recently Fitted Units, Worktops, And Space For Appliances
- Two Generously Sized Double Bedrooms
- Modern Family Bathroom With A White Three-Piece Suite, Electric Shower Over The Bath
- Gas Central Heating For Comfort And Efficiency
- Private Rear Courtyard Garden With Gated Rear Access For Outdoor Space
- On-Street Parking Available Via A Residents Permit From Derby City Council
- Easy Access To Derby City Centre And The Royal Hospital.
- Close To Local Amenities, Shops, Cafes, And Schools, With Good Transport Links.
AVAILABLE NOW – This attractive and well presented mid-terraced property offers a fantastic opportunity for comfortable city living. Located just off Uttoxeter Road, it provides easy access to Derby City Centre and the Royal Hospital. Featuring a modern, recently updated kitchen, spacious living areas, and a peaceful courtyard garden, this home offers a welcoming and functional layout. On-street parking is available via a residents permit. Available for immediate occupation, this home is perfect for anyone seeking convenience and comfort in the heart of Derby.
The Detail
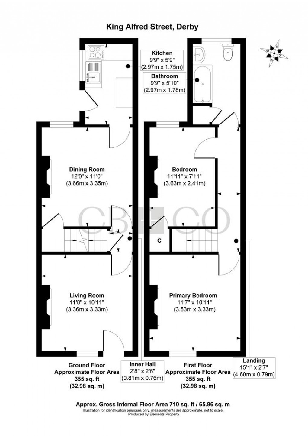
This well-presented two-bedroom mid-terrace house is located in a desirable area just off Uttoxeter Road, offering convenient access to Derby City Centre and the Royal Hospital.
The property has the benefit of gas central heating and a well-maintained interior. The ground floor features a spacious lounge and a separate dining room, each with natural light and ample living space. The recently fitted kitchen is modern and stylish, offering a range of wall and base units, laminate worktops, a tiled splashback, and space for appliances. The kitchen also has access to the private rear courtyard garden, perfect for outdoor relaxation.
Upstairs, the property has two generously sized double bedrooms. The primary bedroom, located at the front, provides plenty of room for furnishings, while bedroom two, positioned at the rear, offers a peaceful aspect. The family bathroom is modern, featuring a white three-piece suite with a panelled bath, electric shower, wash hand basin, and low-level wc.
Outside, the property benefits from a private courtyard garden with gated rear access, ideal for outdoor seating or additional storage.
On-street parking is available via a residents permit from Derby City Council at a small cost.
The Location
King Alfred Street is ideally located in the heart of Derby City Centre, offering excellent access to local amenities, including shops, cafes, and schools. The property is just a short distance from the city centre, where you can enjoy a wide variety of dining, entertainment, and cultural attractions.
For those working at the Royal Hospital, the location is particularly convenient. The area also offers good transport links, with regular bus services and easy access to the inner city ring road, making commuting or exploring the surrounding area simple and hassle-free.
This vibrant and central location ensures that all your daily needs are within easy reach.
Reservation Fee & Deposit
A one-week holding fee is required, which will be deducted from the first month's rent upon successful application.
A five-week security deposit is required, which will be lodged with the Deposit Protection Service (DPS). Landlord ID: 4777942
Floorplan
EPC
To discuss this property call us:
Market your property
with Curran Birds + Co
Book a market appraisal for your property today.