Description
- Spacious Two Double Bedroom Character Barn Conversion
- Secluded Position - Delightful Location in the Heart of Breadsall Village
- Around 1400 Square Feet of Accommodation
- Character & Charm - High Vaulted Ceilings with Exposed Beams
- Entrance Hallway, WC, Dining Hallway & Fitted Kitchen
- Spacious Sitting Room with High Vaulted Ceiling & Conservatory
- Two Double Bedrooms, Four Piece Bathroom Suite & En-Suite Shower Room
- Gated Driveway & Detached Single Garage with Electric Remote Control Door
- South Facing Landscaped Private Gardens
- No Chain Involved
SPACIOUS BARN CONVERSION SET IN SOUGHT AFTER VILLAGE – A rare opportunity to acquire this beautifully proportioned and characterful two double bedroom barn conversion, occupying a secluded position set back from Rectory Lane in the heart of Breadsall Village. The property benefits from a private gated driveway leading to a detached brick-built garage and landscaped south-facing gardens. This exceptionally spacious home offers approximately 1,400 square feet of living accommodation. Thoughtfully converted from a series of farm outbuildings to create a generous two-bedroom layout, the property features gas central heating and timber-framed double glazing, and briefly comprises: entrance hallway, WC, dining hall, fitted kitchen, and a spacious sitting room with vaulted ceiling and feature fireplace, along with a conservatory. An inner hallway provides access to two well-proportioned double bedrooms and a four-piece family bathroom. The principal bedroom also benefits from an en-suite shower room. Externally, the gated driveway provides off-road parking for three to four vehicles and leads to a good-sized detached brick-built garage with an electric remote-controlled roller door. The delightful south-facing landscaped garden includes a lawn, timber-decked seating area, and a rockery-style water feature.
The Detail
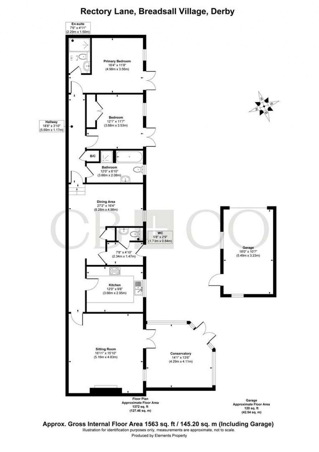
The property is entered via a timber-panelled door into a welcoming entrance hall. From here there is access to a WC and an impressive dining hall featuring a high vaulted ceiling with exposed beams and skylights, together with useful cloak storage. The dining hall also leads to the kitchen, sitting room and steps rising to the rear hall.
The spacious sitting room is a particularly striking feature of the home, boasting a high vaulted ceiling with Velux windows, exposed timbers and an attractive fireplace with timber mantel. Oak-effect flooring runs throughout, and the room benefits from windows to the front elevation as well as French doors opening into the conservatory. The brick-based conservatory, with its glazed roof, enjoys direct access to the garden.
The kitchen is well appointed with a range of panelled units and composite work surfaces, incorporating integrated appliances including an Electrolux oven, gas hob, dishwasher and fridge-freezer. A window to the front elevation provides natural light.
Steps rise from the dining hall to the rear hall, which is fitted with bespoke pine cabinetry and includes a boiler cupboard housing a recently installed Ideal combination boiler (October 2025). From here there is access to two double bedrooms and a four-piece family bathroom. The spacious principal bedroom benefits from built-in wardrobes and an en-suite shower room.
Outside, decorative wrought-iron gates open onto a generous gravel driveway providing off-road parking for approximately three vehicles, in addition to a good-sized detached brick-built garage with an electric remote-controlled roller door. The south-facing landscaped gardens feature a shaped lawn, a rockery-style water feature and a timber-decked seating area.
The Location
Breadsall Village is a picturesque and sought after village with its charming church and highly regarded primary school and a delightful coffee shop. The village is located some 3 miles north of Derby City Centre and is surrounded by charming open countryside with delightful walks.
Local recreational facilities include golf courses at Horsley Lodge, Morley Hayes and Breadsall Priory with its gym and health club
The village has the benefit of fast connection to the principal trunk roads including the A52, A6 and A38 together with the motorway network including Junction 25 of the M1 motorway (approximately 9 miles distant) and onwards to East Midlands International Airport.
Floorplan
To discuss this property call us:
Market your property
with Curran Birds + Co
Book a market appraisal for your property today.