Description
- Elegant And Beautifully Redecorated Three-Bedroom Terraced Home
- Freshly Painted In Crisp White Enhancing Light And Space
- Bright, Airy Rooms With A Contemporary, Neutral Finish
- Welcoming Lounge Flowing Seamlessly Into Separate Dining Room
- Well Appointed Kitchen With Space For Fridge Freezer And Washing Machine Plumbing
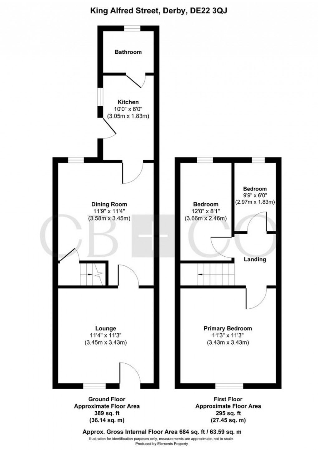
- Ground Floor Bathroom Conveniently Positioned Off The Kitchen
- Two Well Proportioned Single Bedrooms And Generous Double Bedroom Upstairs
- Private, Low Maintenance Rear Courtyard Providing Outdoor Retreat
- Permit Parking Available Directly Outside The Property
- Prime Location Within Easy Reach Of City Centre, Amenities And Transport
AVAILABLE NOW – This well presented three bed mid-terraced property offers a fantastic opportunity for comfortable city living. Located just off Uttoxeter Road, it provides easy access to Derby City Centre and the Royal Hospital. Featuring a modern, recently updated kitchen, spacious living areas, and a peaceful courtyard garden, this home offers a welcoming and functional layout. On street parking is available via a residents permit. Available for immediate occupation, this home is perfect for anyone seeking convenience and comfort in the heart of Derby.
The Detail
An elegant and beautifully redecorated three-bedroom terraced home offering bright, contemporary living throughout.
The property has been freshly painted in crisp white, enhancing the natural light and creating a spacious, airy feel in every room. The neutral décor provides a clean, modern canvas that will complement any style of furnishing, allowing tenants to truly make the space their own.
The accommodation is arranged in a traditional and practical layout. You enter into a welcoming lounge, which flows seamlessly into a separate dining room — ideal for entertaining or family living. To the rear, the well-appointed kitchen offers ample worktop and storage space, with dedicated space for a fridge freezer and plumbing in place for a washing machine. The ground floor bathroom is conveniently positioned off the kitchen.
Upstairs comprises two well-proportioned single bedrooms and a generously sized principal double bedroom, offering flexible accommodation for families, professionals, or those working from home.
Externally, the property benefits from a private, low-maintenance rear courtyard, providing a pleasant outdoor retreat. Permit parking is available directly outside the property.
This home combines fresh modern décor with practical living space, ready for immediate occupation.
The Location
Ideally situated for those wanting convenient access to the city centre, the property is within easy reach of local amenities, shops, schools, and transport links. Its central position makes it particularly attractive to families and professionals seeking both accessibility and community living.
King Alfred Street is ideally located in the heart of Derby City Centre, offering excellent access to local amenities, including shops, cafes, and schools. The property is just a short distance from the city centre, where you can enjoy a wide variety of dining, entertainment, and cultural attractions.
For those working at the Royal Hospital, the location is particularly convenient. The area also offers good transport links, with regular bus services and easy access to the inner city ring road, making commuting or exploring the surrounding area simple and hassle-free.
This vibrant and central location ensures that all your daily needs are within easy reach.
Reservation Fee & Deposit
A one-week holding fee is required, which will be deducted from the first month's rent upon successful application.
A five-week security deposit is required, which will be lodged with the Deposit Protection Service (DPS). Landlord ID: 4777942
Floorplan
To discuss this property call us:
Market your property
with Curran Birds + Co
Book a market appraisal for your property today.