Description
- Traditional Three Storey Mid Terrace Property
- Elevated Position With Gated Front Garden
- Offered For Sale With No Upward Chain
- Three Well Proportioned Bedrooms
- Open Plan Second Floor Study Area
- Character Features Throughout Including Sash Windows
- Feature Fireplaces Including Open Fire And Stove
- Fitted Kitchen With Belfast Style Sink
- Ground Floor WC And Separate Utility Room
- Tiered Rear Garden With Courtyard And Lawn
NO CHAIN - THREE STOREY CHARACTER PROPERTY - Positioned within the heart of a highly regarded village, this traditional three-storey mid-terrace presents an excellent opportunity for buyers seeking generous accommodation with period charm. Set behind a gated frontage with an elevated approach, the home offers a welcoming first impression and a layout suited to both everyday living and entertaining. Character features run throughout, while the rear garden provides a private outdoor retreat. Offered for sale with no upward chain, the property combines convenience, space, and lifestyle appeal in equal measure, making it a compelling option for those looking to settle within a well-connected and established community.
The Detail
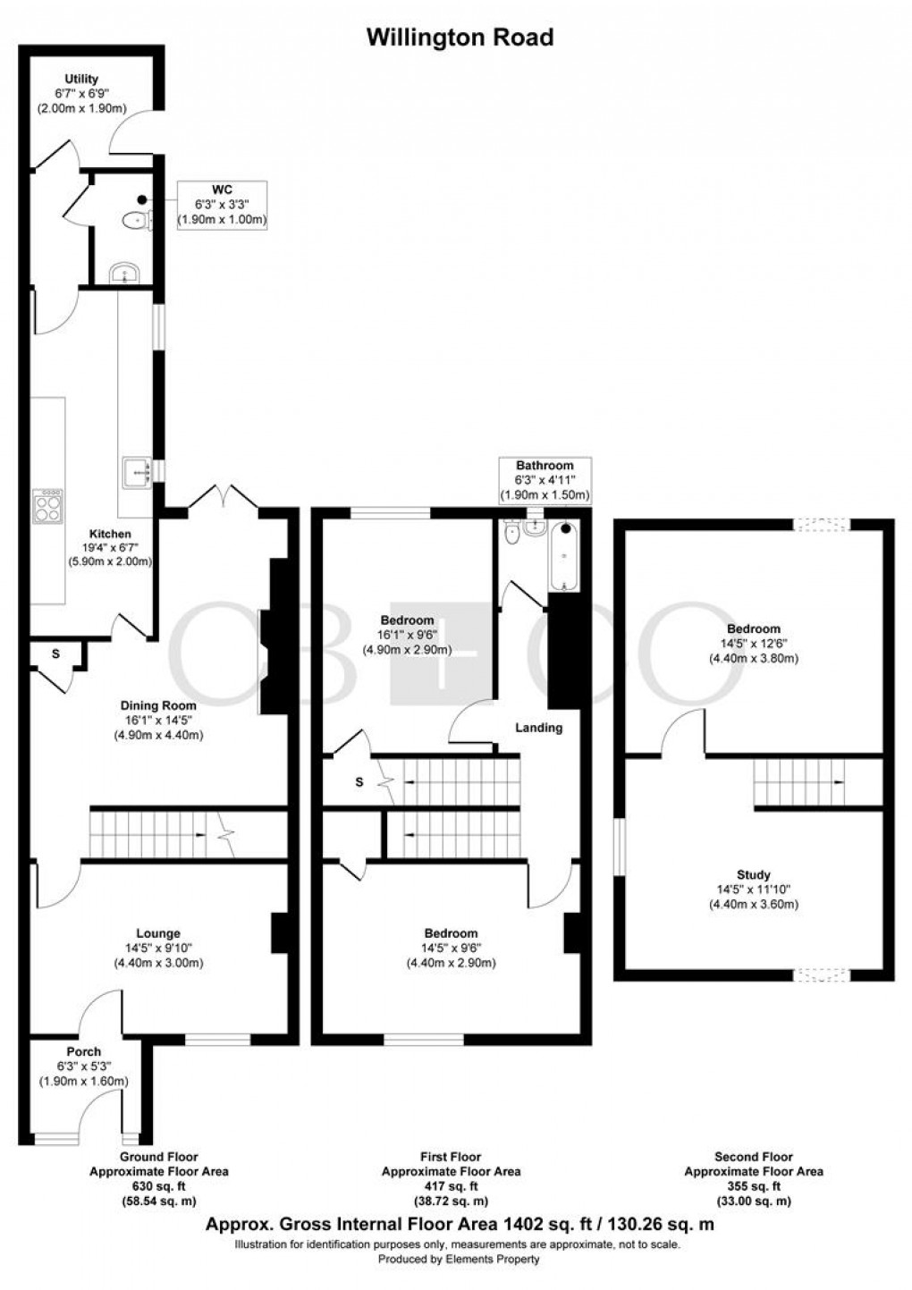
The property opens via an entrance porch into a front-facing lounge, where a sash window, solid wood flooring, and a period-style fireplace with open fire create a warm and inviting setting. At the rear, the dining area provides a well-proportioned space with a feature fireplace housing a log burner-style stove, useful storage cupboards, and French doors leading out to the rear garden. The kitchen is fitted with shaker-style units, worktops, a Belfast-style sink, gas hob, and integrated electric oven, complemented by a separate utility room and a ground floor WC.
To the first floor are two well-proportioned double bedrooms, both retaining period character, alongside a family bathroom fitted with a three-piece suite and rainfall shower over the bath. The second floor introduces a versatile open-plan study area with Velux windows, leading through to a third bedroom, also benefiting from Velux windows.
Externally, the rear garden is arranged over tiers, beginning with a courtyard seating area and steps rising to lawned sections bordered by mature planting. This outdoor space offers a pleasant setting for dining and relaxation, with established greenery enhancing the overall appeal.
The Location
Situated within the heart of the village, the property enjoys immediate access to a range of everyday amenities, including a nearby post office and a selection of independent shops and local services. The area is particularly popular with families, falling within the John Port School catchment and offering access to a well-regarded local primary school.
Leisure facilities are close at hand, with a nearby leisure centre providing a gym and swimming pool, while the Great Northern Greenway offers an excellent route for walking, cycling, and running. Regular bus services connect to both Derby and Burton, making commuting straightforward while maintaining the charm and convenience of village living.
Floorplan
To discuss this property call us:
Market your property
with Curran Birds + Co
Book a market appraisal for your property today.